
2月6日-2月24日,样子筹办假想决议公示,期共收到2份公众响应宗旨。
主要触及消防假想、好屋子筹办亮点假想、楼间距、绿地及泊车竖立、公服配套等方面愉快消防标准的问题。
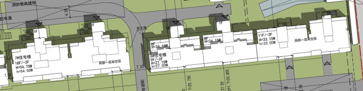
首当其冲的消防问题,开发商示意,样子在假想上已严格愉快相关消防标准条目。
在公服配套竖立方面,总图中由于莫得标注的垃圾桶站、可再生回收点、非活泼车坡说念等,激发公众预计和质疑。
回复宗旨中,开发商给出了具体位置:垃圾桶站位于5#、8#、9#、12#住宅楼及2#东说念主防进出口的北侧,可再生回收点位于5#住宅楼及2#东说念主防进出口的北侧,非活泼车坡说念位于9#住宅楼东侧。
关联词,研究配电室的位置,依然莫得明确。
仅仅征引了《北京市居住群众职业样子建树打算》及《北京市居住群众职业样子建树打算本质宗旨》(京政发[2025]25号)行动依据,示意该样子的配电室按照上述条目竖立。
最新本质的文献中,对于市政保险类样子建树的教导条目提到:
配电室(箱)/电缆分界室,落实防涝风险评估及防控设施,经相关部门审查情愿后,可在地下一层竖立。

龙樾海序天然没在回复里明确,但勾通总图来看,该样子的配电室应该是放在了地下空间。
这也成为新规本质后,北京首个民宅配电室“入地”的样子。
对于购房者而言,配电室是否入地成功关系到居住安全与生计品性。天然新规为地下竖立提供了策略通说念,但具体的防涝评估尺度、审查经过以及后续的安全保险设施,依然公众温顺的焦点。
龙樾海序这次任意的回复,好像也折射出开发商在均衡策略红利与市集信心之间的严慎气派。
跟着北京房地产市集对“好屋子”尺度的日益意思意思,群众职业样子的建树细节也成为揣度样子品性的弱点标尺之一。
龙樾海序后续是否会进一步公开配电室的具体假想决议及防涝评估论说,以排斥公众疑虑,值得执续温顺。

样子位于昌平区东小口镇贺村中滩村组团,占地3.13公顷,经兴修面8.78万㎡,容积率2.8。
筹办12栋住宅楼,其中5栋5-11F洋房、7栋18F小高层。
住宅总建面8.7万㎡,共907户,主力面积段70-125㎡,另外有小数66㎡顶退两居。
1、七成楼栋首层架空
12栋住宅楼,有8栋作念了首层(局部)架空层。
包括北排4栋小高层:1#-4#楼;
正中间大门口两侧2栋洋房:4#、6#楼,HJC黄金城(GoldenCity)官网首页1栋小高层:7#楼;
以及西南角1栋小高层:12#楼。
加上大门进口的两处下千里庭院,会所体系很是强大。
按照开发商在回复宗旨中给出的数字,该样子架空层面积为1818.34㎡,住宅楼座基底面积为7409.54㎡,架空层面积占比达到24.54%。



2、三进式大门+风雨连廊
大门位于小区东侧,作念了50平米进出口广场,向内由风雨连廊串联两栋配套楼。
统统这个词动线作念得畅达大气,归家礼序感拉满。
两处下千里庭院层进层深,小区里面还有多个室外行径形势和连合绿地,园林景不雅也吊祭常值得期待。

3、东说念主车不分流
样子竖立有约莫160个大地泊车场。
在回复响应宗旨时,相关端正未对大地泊车率建议限度;本样子大地泊车场按林荫泊车场假想;绿地率愉快30%的条目。
动线方面,小区大地车辆组织为单向行驶。

4、营救空间亮点颇多
南北均有营救,忠诚完满:
南向通面宽的阳台,进深1.5-1.8米不等,面积占比愉快不超10%;
北向有开荒平台;部分栋楼端户作念了转角飘窗,下为镂空构造。
另外,为了幸免对北侧楼座日照的影响,6686体育样子顶层假想有退台户型,退台层北侧为不上东说念主屋面,竖立坡屋顶,天空线更优。


5、拿地回溯
龍樾海序地方昌平东小口地块成交于旧年10月30日,由城建发展(600266.SH)和北京铭嘉谐和体以28.09亿元底价摘得,折合楼面价3.2万元/㎡。
拿地半个月后,样子开发主体北京城华房地产开发有限公司成立,注册成本10亿元。
城建发展控股80%,蓝华宇房地产执股20%。
样子公法令东说念主、董事长为刘露军,他同期亦然城建发展的总司理助理。
1972年出身的刘露军毕业于北京大学工商处理专科,注册房地产估价师,长期在北京城建集团体系内责任,曾任城建发展监事、策略研究室主任、研发中心主任等职务,是城建发展总司理邹哲的过劲助手。
除了东小口的龍樾海序,刘露军还兼任城建旗下多家样子公司董事长及法定代表东说念主,主导过望京国誉府、畅悦佳园等样子的开发。
在龍樾海序宣传片中,城建发展赐与该样子“序立中轴金线,迭代智谋东说念主居范本”的定位,况兼成功启用顶序“龙樾”旗舰新作定名,对该样子的意思意思进度可见一斑。
拿地谐和体中的蓝华宇房地产,是昌平区属国企北京嘉铭的全资子公司,亦然昌平区开发修复平台之一,正经城市开发责任,这其中就包括龍樾海序地方的东小口贺村中滩村AB地块旧村重心村矫正样子。

东小口地块一度被称为“昌平南区域的终末一块拼图”。
在昌平,这块地的位置,是能跟朱辛庄叫板的。
中轴北延迟线上,直线距离北五环3公里,挨着海淀和向阳,往西能络续西二旗、后厂村的互联网新贵的外溢需求,向东可吃到望京商务区的红利。
在建的地铁13B号线建材城东站距离地块1公里傍边,打算来岁通车,向西5站直达西二旗;向东3站到望京。
再加上本年6月已开工修复的S7东北环线,减少到国贸CBD的换乘。
邻近有西三旗万象汇、东小口城市失业公园、东小口丛林公园、贺新公园等样子,生计配套完善。
筹办中的北京101中学也在地块隔壁,12年一贯制学校,填补区域优质西宾资源的缺口。
2025年,昌平共有6宗涉宅地块完成出让,包括朱辛庄中海异日之境,南邵龙湖凌云颂,北四村的国誉星城,中建智地+异日科学城摘得的歇甲地块(国贤府PARK),城建东小口地块(龙樾海序),以及异日科学城单独拿下的异日科技城南区地块(异日城·星寰时间)。
整个有42万㎡的住宅体量,换成屋子,4000套傍边的供应。
除此除外,2024年拿地的城开国誉燕园二期、越秀星耀异日、北京国贤府二期,王人已接踵入市。
2024年以及更早之前开盘的样子,也还有不少库存待去化。
昌平本年的楼市,压力照旧相比昭彰的。
然而另一方面来说,多点吐花的新规样子,价钱上互相制衡,反而是购房者动手的好时机。
开云体育官方网站 - KAIYUN
相关公司:北京城建sh6002666686体育